
Marble Arts
A demountable theatre located next to the Grade 1 listed Marble Arch
Marble Arts is a demountable 500 seat theatre designed for HH productions, who currently run the historic Arts Theatre near Leicester Square. The site, next to Marble Arch, has a history of temporary structures, the most recent of which was the Mound in 2022. Prior to this a Spiegeltent was erected on the site for the show ‘Five Guys and Moe’, which opened in 2017.
Set within the Royal Parks Conservation Area the building will be constructed from a modular frame, with the majority of components being fabricated off-site and has been designed to minimise disruption, speed up erection/ disassembly and reduce waste.
The building will be wrapped in a lightweight fabric, referencing the layered texture of the surrounding tree canopies, subservient to the arch and surrounding stone buildings.
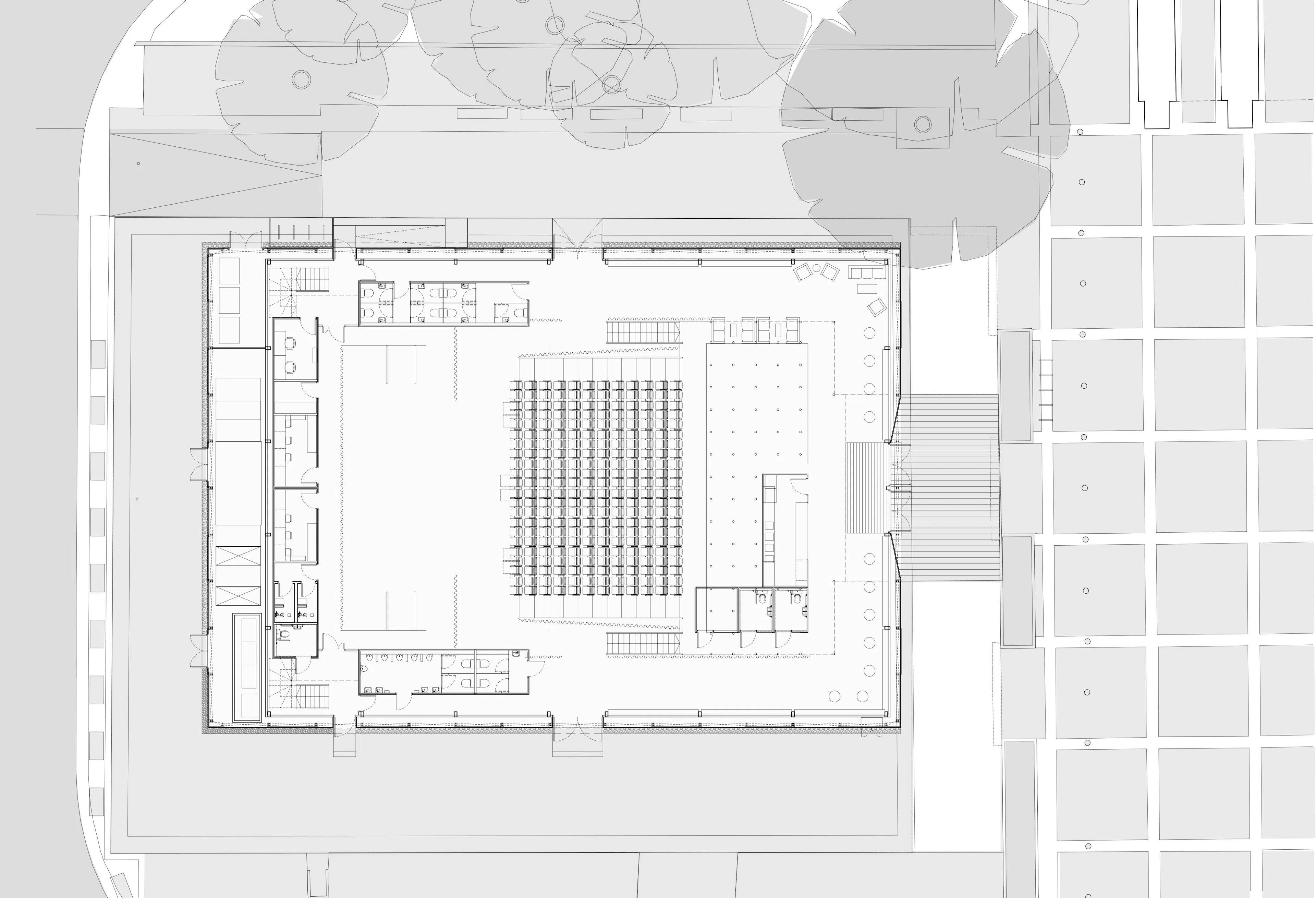
The building is organised into three zones - with the foyer/ bar at the front accessed from the paved forecourt, with wide aisles either side leading to the auditorium and the stage in the centre of the plan. The stage will be surrounded on three sides by stacked shipping containers which not only provide space for toilets, dressing rooms and office but also act as an acoustic buffer.
Planning Permission and Conservation Area Consent were granted in December 2025.
Sector
Culture, Heritage
Location
Westminster, London
Status
Planning permission granted












